logo

智造未来,装配天下
WORKS EXCELLENCE +
优秀作品
位置:

大麦·66LIVEHOUSE改造



棉三1921,对于ISCD象境营造团队来说再熟悉不过。原本是始建于1921年的老厂房,在见证了近一个世纪的变革与沧桑后,我们曾经对其进行提升改造,将原有的北洋工业风格与创意设计、文化休闲等产业融为一体,让老建筑与新艺术和谐共生。随着经营思路的调整,1921完成了初始的任务,开始进入新的经营周期。


2022年,大麦·66LIVE HOUSE品牌落地棉三1921,为海河沿岸注入音乐活力。本次改造提升,是对历史风貌建筑的再次更新创造。城市里凝固的时空记忆,以设计语境下的空间对话和情感传递,将历史文化积淀以全新方式进行书写和表达。规划场馆总面积1350㎡,可容纳站立1500人,或两层共计600座观看演出。在保留原有工业建筑空间风格,和本身原始艺术属性的同时,ISCD象境营造为大麦·66刻画出具有“音乐基因”的专属品牌特质,打造让年轻音乐爱好者相聚在此、具有活动归属感和品牌号召力的潮流音乐地标。


海河东路入口平面:


外摆效果:





园区内外摆平面:





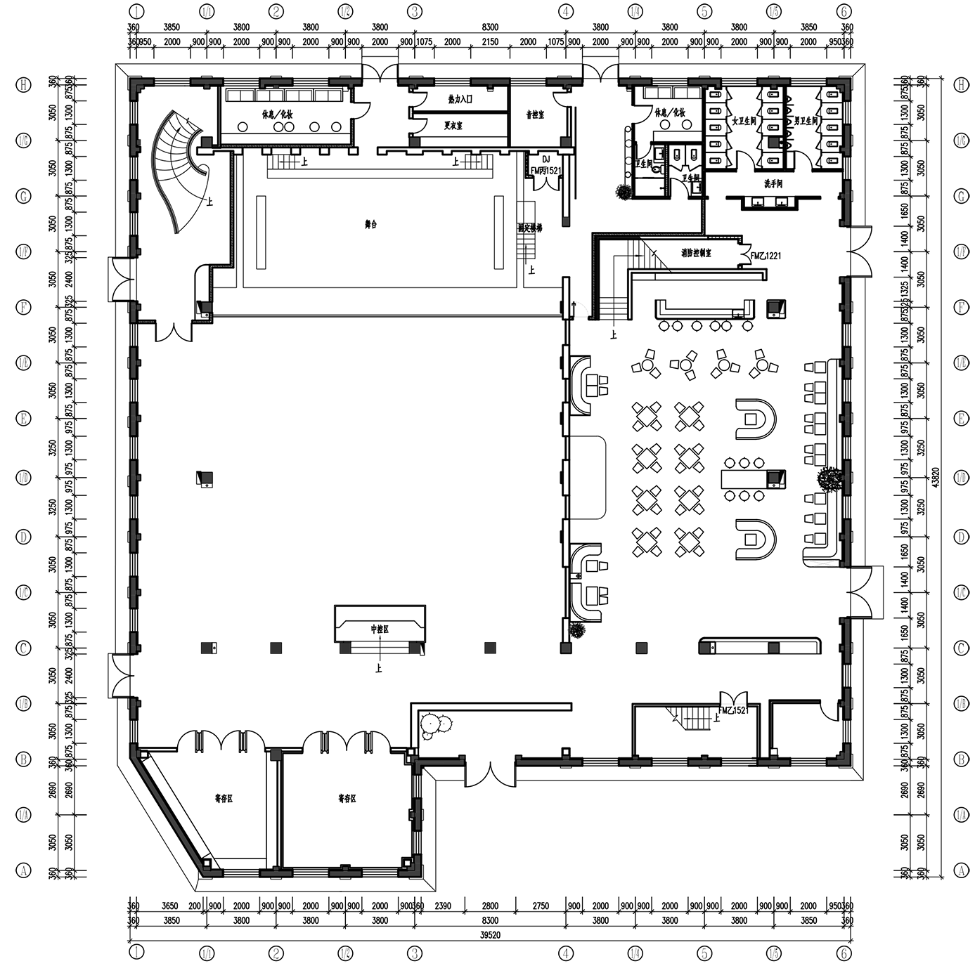
酒吧区域平面:



酒吧区域效果:




后场及办公区入口:



返回列表
天津华惠安信建筑装饰设计研究院 版权所有 沪ICP备16016745号-3   沪公网安备 31022102000212号